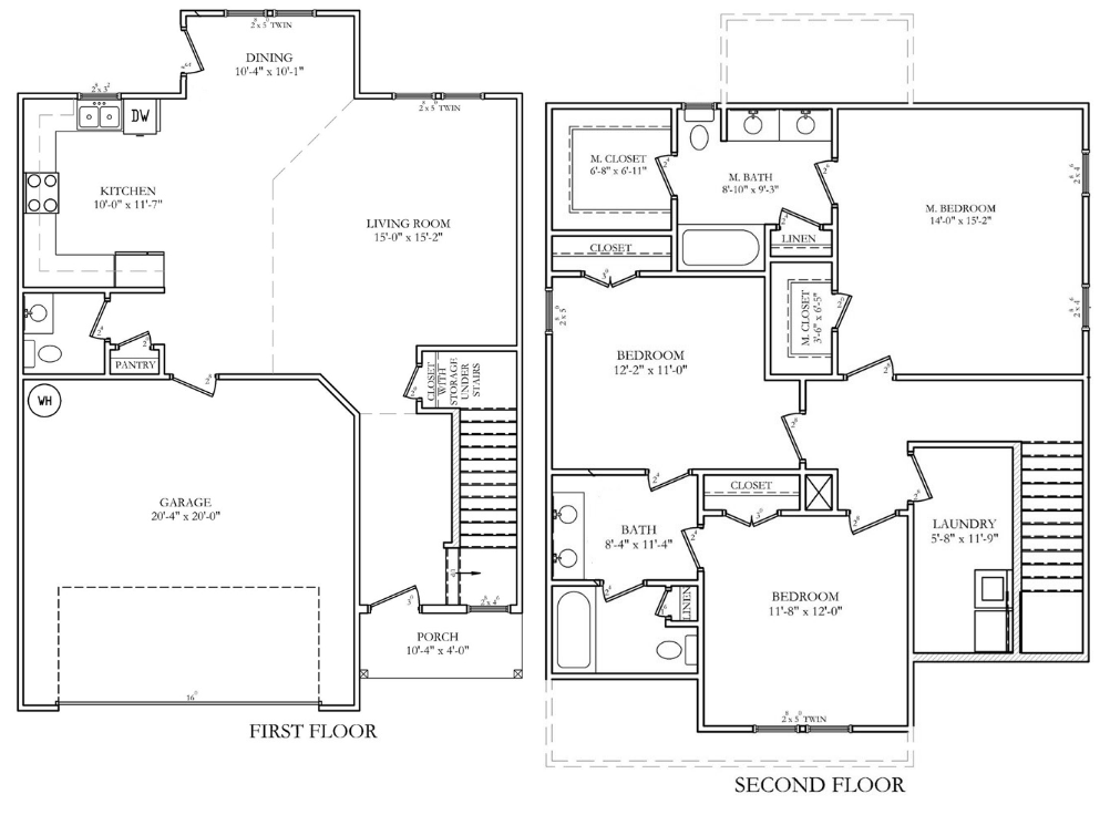
C & D Floor Plans